Townhouse MN
verbouwing - Rotterdam
Townhouse MN
verbouwing - Rotterdam
Townhouse KH
Rotterdam
Nederland
175 m2
550 m3










Townhouse KH
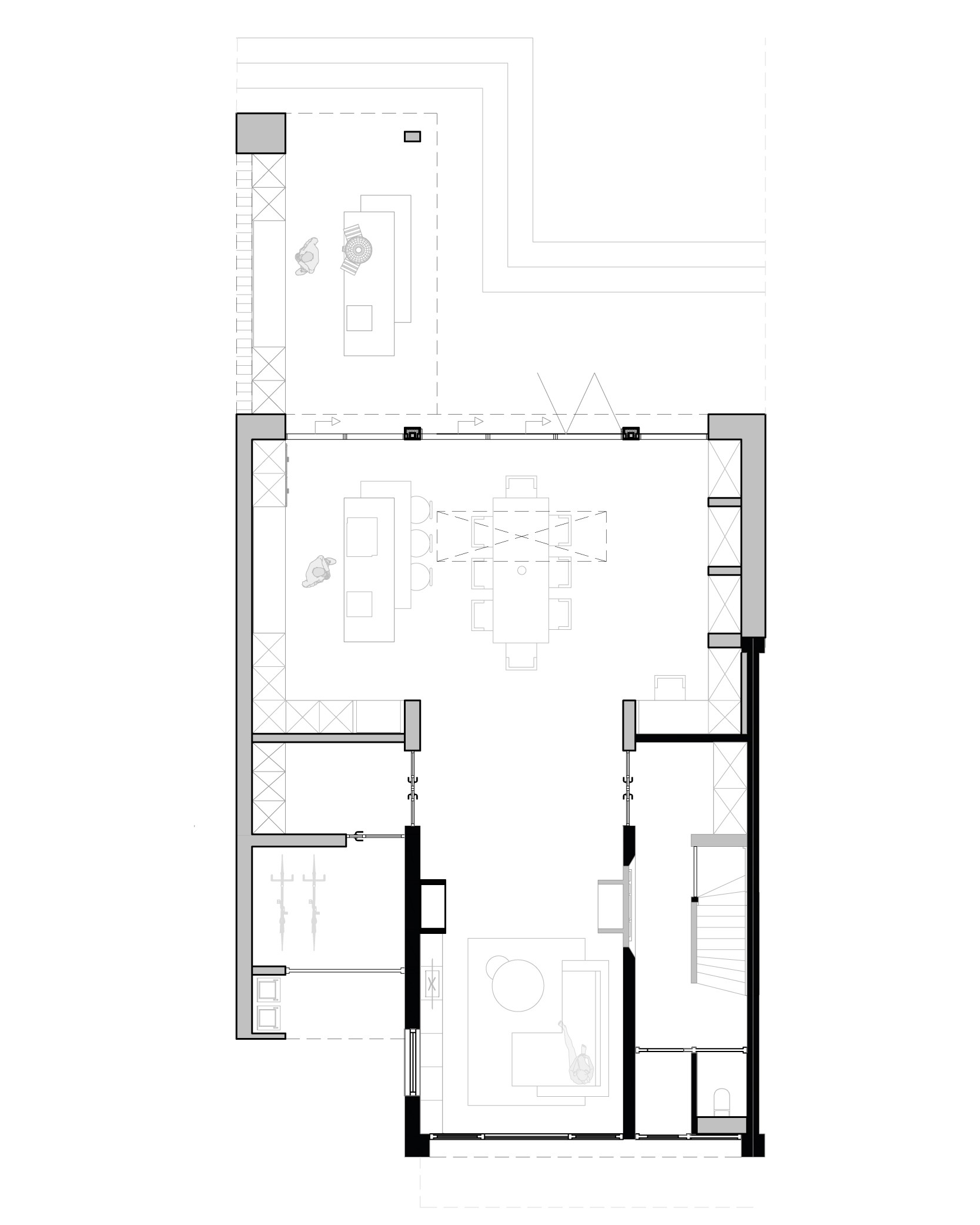
Een compacte twee-onder-een-kapwoning, is getransformeerd tot een ruim familiehuis.Door de begane grond uit te bouwen en de garage te betrekken, ontstond één royale leefruimte met veel glas aan de tuinzijde.
Ook de zolder is opnieuw benut met dakkapellen aan voor- en achterzijde, waardoor extra volwaardige ruimte is ontstaan.
De toevoegingen zijn bekleed met red cedar, waardoor oud en nieuw samenkomen in één rustig geheel.
Townhouse KH
Rotterdam
Nederland
175 m2
550 m3










Townhouse KH
Een compacte twee-onder-een-kapwoning, is getransformeerd tot een ruim familiehuis.Door de begane grond uit te bouwen en de garage te betrekken, ontstond één royale leefruimte met veel glas aan de tuinzijde.
Ook de zolder is opnieuw benut met dakkapellen aan voor- en achterzijde, waardoor extra volwaardige ruimte is ontstaan.
De toevoegingen zijn bekleed met red cedar, waardoor oud en nieuw samenkomen in één rustig geheel.